9803 GOBAT ALLEYORLANDO, FL 32827
Due to the health concerns created by Coronavirus we are offering personal 1-1 online video walkthough tours where possible.




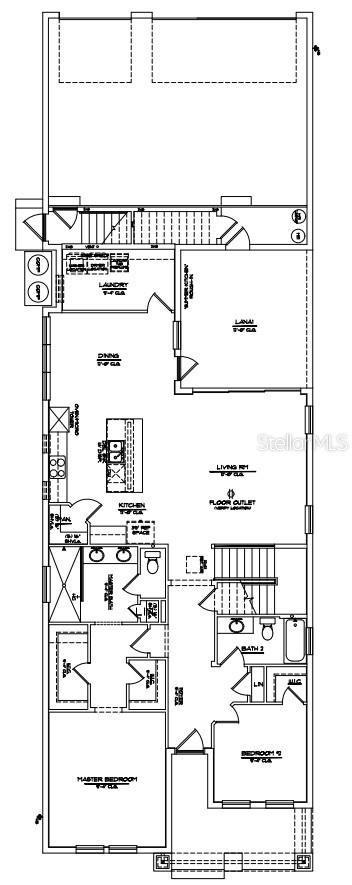
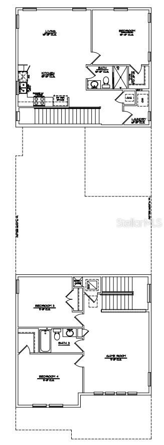
Under Construction. Welcome to the Maui-where modern comfort, custom craftsmanship, and smart design come together in one gorgeous, Florida-born package. Built by ICI Homes, a family-owned, Florida-based builder known for quality and innovation, this two-story beauty offers the kind of lifestyle upgrades that make every day feel like a staycation. With over 3,300 square feet of thoughtfully designed space, the open-concept main floor connects the living room, dining area, and kitchen like it was made for hosting Sunday brunch and weeknight takeout. The chef’s kitchen is the real MVP—boasting a large center island, quartz countertops, sleek cabinetry, and all the elbow room you could want for family baking nights or solo espresso sipping. Slide open the oversized glass doors and boom-you’re on the covered lanai, the perfect spot for your morning coffee, afternoon nap, or full-blown BBQ bash. It’s indoor-outdoor living at its finest. Downstairs also includes a private primary suite retreat with a spa-inspired bath and a walk-in closet that might actually spark joy. Plus, a second bedroom and full bath for guests or that home office you keep promising yourself. Upstairs? A massive game room anchors two more bedrooms and a third full bath-ideal for family, guests, or your future in-home theater. But here’s the showstopper: above the enlarged 3-car garage sits a fully equipped garage apartment with private entrance, full kitchen, laundry room, bedroom, and bath. It’s perfect for multi-gen living, out-of-town visitors, or an income-producing rental. This is flexibility built right in and only a true custom builder can deliver it this seamlessly. Every ICI home is packed with energy-smart features like Low-E windows and hybrid hot water heaters - saving you money and keeping your home cool (literally and figuratively). Plus, it’s backed by a 2-10 Home Builders Warranty and inspected twice to meet the ICI EQ Factor. This is more than a home. It’s a personalized, high-performance lifestyle hub, crafted by one of Florida’s most trusted builders. Ready to live the Maui life? Let’s make it yours.
a month ago | Listing updated with changes from the MLS® | |
a month ago | Status changed to Pending | |
a month ago | Listing first seen on site |

Listing information is provided by Participants of the Stellar MLS. IDX information is provided exclusively for personal, non-commercial use, and may not be used for any purpose other than to identify prospective properties consumers may be interested in purchasing. Information is deemed reliable but not guaranteed. Properties displayed may be listed or sold by various participants in the MLS Copyright 2025, Stellar MLS.
Last checked: 2025-10-19 05:29 PM EDT
Did you know? You can invite friends and family to your search. They can join your search, rate and discuss listings with you.