189 S ORANGE AVENUE 1900-1970ORLANDO, FL 32801
Due to the health concerns created by Coronavirus we are offering personal 1-1 online video walkthough tours where possible.




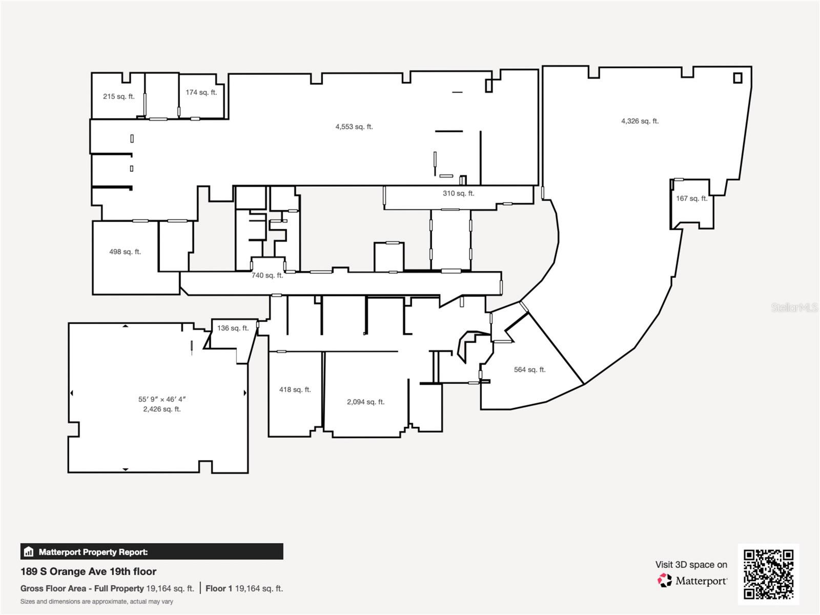
Unlock a rare opportunity to occupy or invest in a full floor within one of Downtown Orlando’s most recognizable Class A office towers. The 19th floor at The Plaza South Tower offers ±19,032 rentable square feet (±16,548 usable) across six modern suites (1900–1970 S), with options for full-floor occupancy or divisible configurations starting around ±2,500 RSF. Highlights: *Premium Class A finishes with floor-to-ceiling glass *Multiple private balconies with skyline views *Efficient central-core layout for flexible demising *Modern elevator lobby and secure access *Covered parking available onsite *Walkable to Amway Center, Kia Center, and downtown dining Perfect for corporate headquarters, professional firms, or creative offices seeking a premier downtown address with high visibility and exceptional amenities.
| a month ago | Listing updated with changes from the MLS® | |
| 2 months ago | Price changed to $3,500,000 | |
| 4 months ago | Listing first seen on site |
Listing information is provided by Participants of the Stellar MLS. IDX information is provided exclusively for personal, non-commercial use, and may not be used for any purpose other than to identify prospective properties consumers may be interested in purchasing. Information is deemed reliable but not guaranteed. Properties displayed may be listed or sold by various participants in the MLS Copyright 2026, Stellar MLS.
Last checked: 2026-02-25 05:37 AM EST

Did you know? You can invite friends and family to your search. They can join your search, rate and discuss listings with you.